preišči samo Studio Kalamar
  projekti info na začetek eng
 
 
 
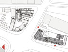
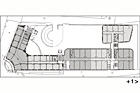
POSLOVNI CENTER TIVOLI
 
 

lokacija: Ljubljana
površina: 13.500 m2
naročnik:
VB Nepremičnine d.o.o., Ljubljana
tip: poslovni objekt
status: izveden
leto izgradnje: 2003

spletna stran objekta: www.tivoli-center.si

 
   
 
Urbana naloga: Prenova arhitekturnega spomenika in ohranitev urbane dominante pred vhodom v mestno središče. Zamenjava prizidka iz leta 1938 z novogradnjo v obstoječi fasadni liniji. Členitev volumnov na južnem zaključku - morfološko bližanje vzorcu vil.

Zasnova: Prenovljeni vogalni objekt - bela opna se nadaljuje v v črno strukturo. Monofunkciji sledi monoforma, ki nagovarja mesto v tihem, globokem tonu zbora in pušča tenorju Mušičevega spomenika vlogo solista. Vse ostalo je kompozicija programskih elementov ujetih za rdečo steno in v srebrn stolp, ki nagovarjata dolgi Kolizej in celično strukturo vil.
 
projekti
 
kronološko
 
status
izvedeni projekti
projekti v gradnji
projekti v delu
neizvedeni projekti
idejni projekti
 
tip
javni
stanovanjski
stanovanjski za starejše
poslovni
proizvodni
trgovski
hoteli
šport
sakralni
urbani kompleks
javni prostor
mestna infrastruktura
urbanizem
interier
oblikovanje predmetov
scenografija
 
nagrade
objave
 
kontakt

Studio Kalamar d.o.o.
Slovenska 19
1000 Ljubljana
Tel.: +386 1 2410 470
studio@kalamar.si

 
 

Vsebina spletne strani © Studio Kalamar, 2026
Fotografije Miran Kambič in Studio Kalamar